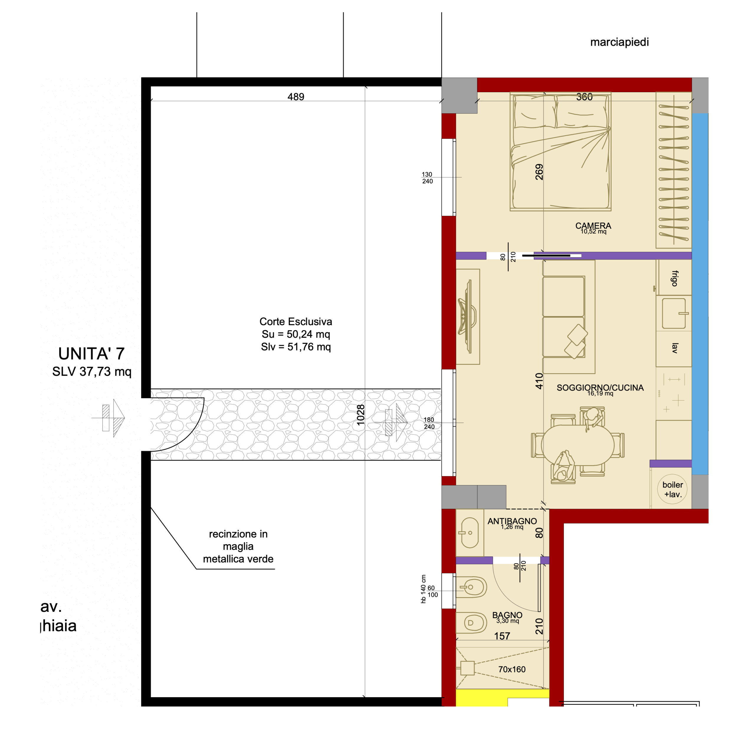
Bilocale
PT° PIANO
37,73 MQ
PT_07
€ 185.000,00 + IVA

PLANIMETRIA

Planimetria PT-07

POSIZIONE NEL PIANO