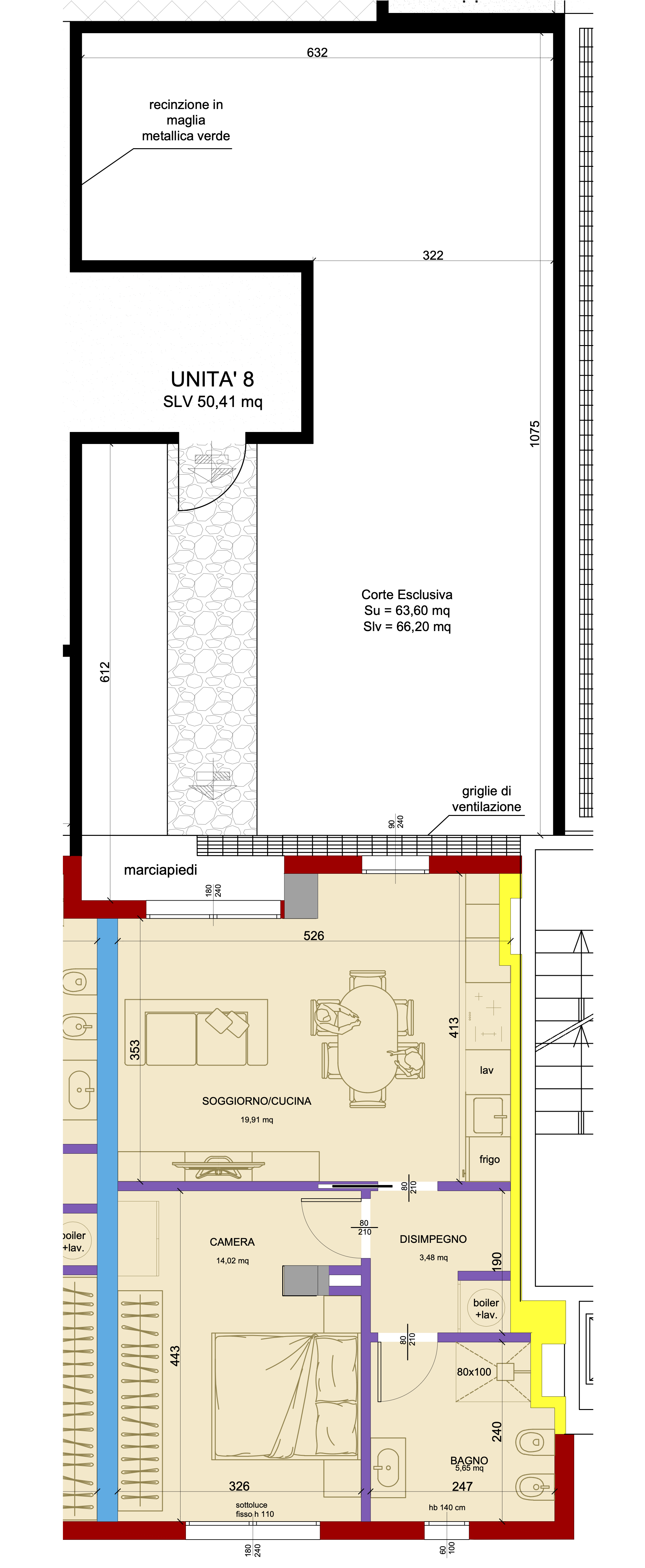
Bilocale
PT° PIANO
50,41 MQ
PT_8
Venduto
€ 200.000,00 + IVA

PLANIMETRIA

Planimetria PT-08

POSIZIONE NEL PIANO