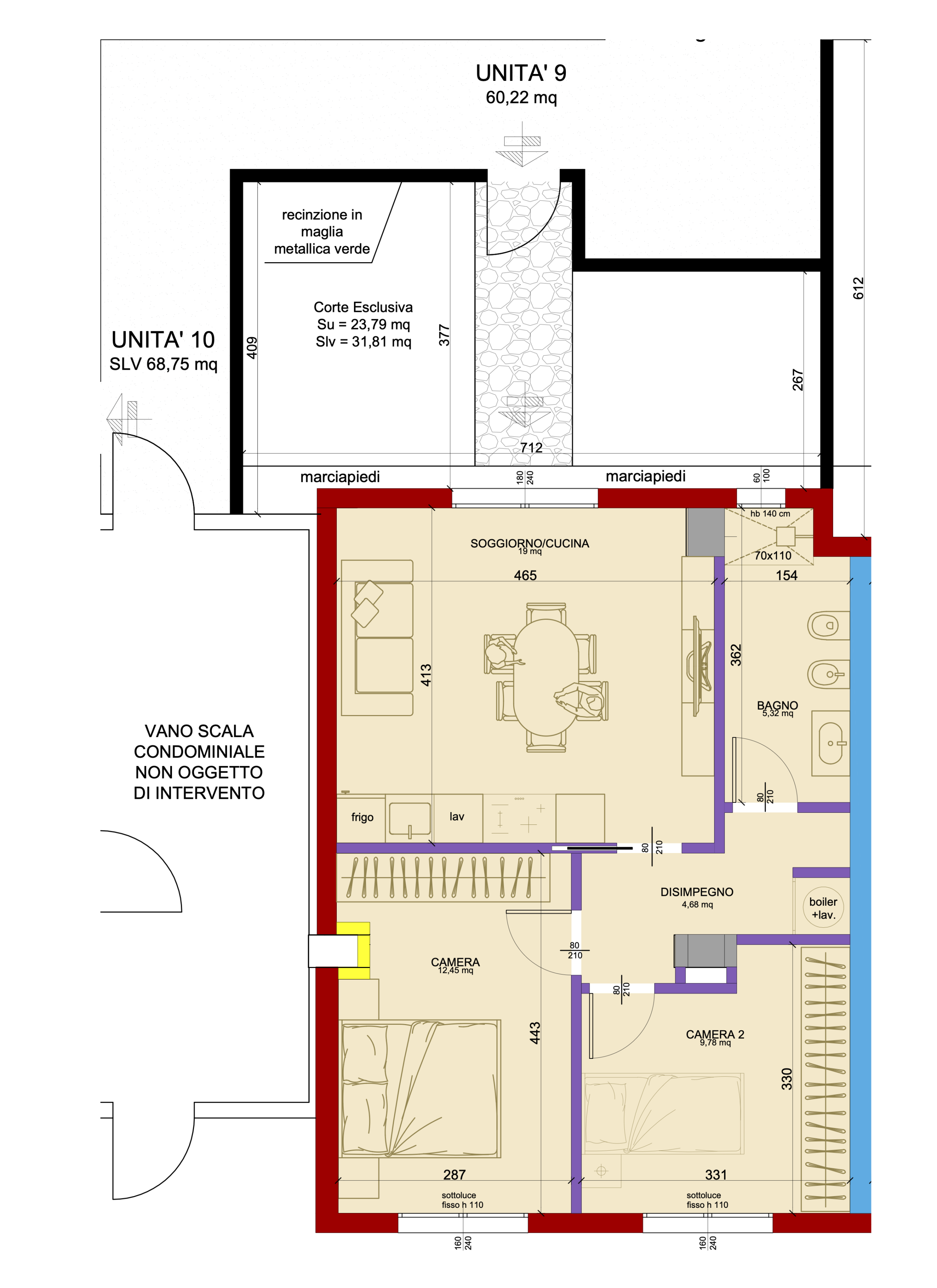
Trilocale
PT° PIANO
60,22 MQ
PT_09
€ 245.000,00 + IVA

PLANIMETRIA

Planimetria PT-09

POSIZIONE NEL PIANO